Your Custom Text Here
Sketch Design Services:
o Conceptual development through to sketch designs. Presented in both 2D (plans sections & elevations) and 3D format.
o Adherence to the properties Zoning Rights, Title Deed restrictions and Town Planning restrictions.
o Adherence to, and interpretation of any design rules and guidelines as they pertain to residential estates.
o Drawing sets for high level costing purposes.
Municipal Submissions/ Drawings for Construction:
o Production of detailed drawing sets for submission to the local authorities.
o Adherence to all SANS 204 Building Regulations and Codes as well as Energy Efficiency Regulations contained in the SANS 10400 XA Documentation.
o Submission of the required supporting documentation and relevant forms.
o Production of full detailed drawing sets, including details for construction purposes.
Site Supervision:
o Ensuring that the builder’s adhere to the drawings delivered to site.
o Quality control.
Project Management:
o Role of Principle Agent.
Sketch Design: Plans
Sketch Design: Elevations
Sketch Design: Exterior Perspectives
Sketch Design: Interior Perspectives
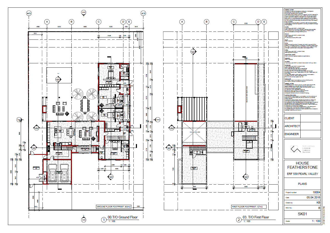
Municipal/ Construction Drawings: Plans
Municipal/ Construction Drawings: Site and Roof Plan
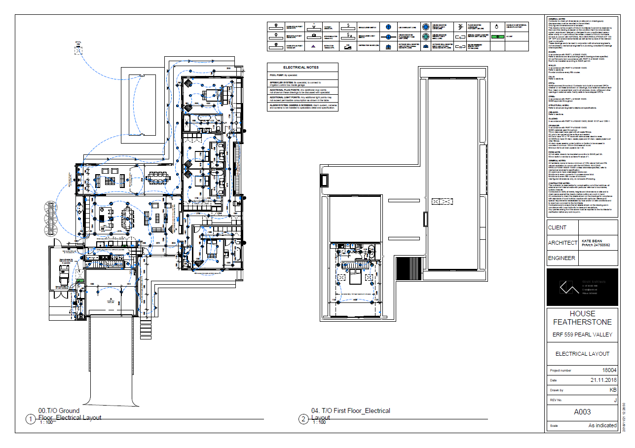
Municipal/ Construction Drawings: Electrical Layout
Municipal/ Construction Drawings: Water Layout
Municipal/ Construction Drawings: Elevations
Municipal/ Construction Drawings: Sections
Municipal/ Construction Drawings: Window and Shutter Schedules
- Feasibility and Design Studies
- Sketch Design:
o Conceptual development through to sketch designs. Presented in both 2D (plans sections & elevations) and 3D format.
o Adherence to the properties zoning rights, title deed restrictions and town planning restrictions.
o Adherence to, and interpretation of any design rules and guidelines as they pertain to residential estates.
o Drawing sets for high level costing purposes. (Specifically relevant during Due Diligence periods)- Consulting rate of R1750/hr
- Marketing Material
- Site Development Plans (SDP)
- Municipal Submissions/ Drawings for Construction:
o Production of detailed drawing sets for submission to the local authorities.
o Adherence to all SANS 204 Building Regulations and Codes as well as Energy Efficiency Regulations contained in the SANS 10400 XA Documentation.
o Submission of the required supporting documentation and relevant forms.
o Production of full detailed drawing sets, including details for construction purposes.
- Site Supervision:
o Ensuring that the builder’s adhere to the drawings delivered to site.
o Quality control.
- Project Management:
o Role of Principle Agent.
Feasibility and Design Study: Site Plan and Parking Layout
Feasibility and Design Study: Block Layout
Sketch Design: Site Plan & Unit Schedule
Sketch Design: Plan
Sketch Design: Conceptual Perspectives
Marketing Material: Site Layout
Marketing Material: Ground Floor Layout
Marketing Material: First Floor Layout
Marketing Material: Unit Layout
SDP 01 & 02
SDP 03 & 04
Municipal/ Construction Drawings: Site Plan
Municipal/ Construction Drawings: Ground Floor Plan
Municipal/ Construction Drawings: Typical 1st, 2nd & 3rd Floor Plans
Municipal/ Construction Drawings: Sections
Municipal/ Construction Drawings: Elevations 1
Municipal/ Construction Drawings: Elevations 2
Municipal/ Construction Drawings: Door and Window Schedules
Construction Drawings: Guard House Details
Municipal/ Construction Drawings: Boundary Walls and Refuse Details
Construction Drawings: Steel Clip-On Structure Details
Construction Drawings: Fire Escape Details
Construction Drawings: Detailed Unit Layouts
Construction Drawings: Details
Production of realistic artist’s impressions for sales and marketing purposes.